粉劑垂直螺旋提升機具有占地面積小的優勢,采用螺旋式加料,輸送過程密封性好、運行穩定,廠家直銷,價格美麗,承接定制,免費設計

粉劑垂直螺旋上料提升機的技術參數。
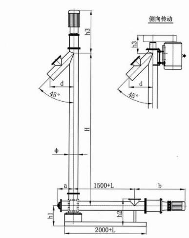
●輸送高度:8000mm(特殊要求可定制)
●功率:AC380V50HZ.1.5KW。
●整機重量:120kg。
儲料倉容量:100L。
輸送量:3m3/小時。
本公司生產的粉劑垂直螺旋上料提升機標準配置輸送管外徑為φ114mm,提升高度為1650mm,輸送管夾角為45°。特殊情況可根據客戶要求定制(輸送量、輸送高度等)。
參數描述:給料機是一種由低到高的物料輸送設備。節省人力,減少材料灑在地上,減少損失和浪費。這種垂直螺旋上料機是我公司根據緊湊的車間設計的不銹鋼給料設備,可以盡可能節省占地面積,從低到高垂直輸送給料。
2.整機所有與物料接觸的部件均采用304不銹鋼,長度設計范圍為1米-12米,送料管直徑為60mm-500mm,可根據客戶要求設計。主軸電機的功率取決于客戶要求和材料選擇。
3.垂直螺旋上料機不銹鋼送料管內壁與螺旋葉片之間的間隙距不得超過3mm。激光切割螺旋葉片,拋光所有焊接接頭,使其殘留;
4.送料速度超過每小時100KG-15噸。

5.粉劑垂直螺旋上料提升機采用進口萬向軸承保溫防塵設計,臺灣省進口油封設計安裝在進料機兩端,確保灰塵和雜物進入軸承,達到耐用的目的。
科學設計:螺旋軸采用不銹鋼無縫管,經車床校正,保證同心度,機器運行穩定,葉片采用不銹鋼。葉片上加厚不銹鋼葉片。
垂直螺旋上料機底部設計有清料口。如果需要換料,只需用風槍吹下即可清理少量殘渣。并在清料口設計安全開關,一旦清料門打開就斷電,安全可靠。
8.電路設計為過載保護,有效保護電機不燃燒。
產品綜述:
1、粉劑垂直螺旋上料提升機采用無縫管制作,整機密封性好,生產環境不揚塵
2、設計緊湊合理,占地面積小,對于設備安裝位置的尺寸受到較多限制場合,特別適用
3、產品生產材質可選碳鋼式、201/304/316不銹鋼等材質,選擇滿足生產需要的材質,盡可能的節約成本。
4、上料過程為全自動化可控上料,整個設備工作期間,無需人工值守,提高企業的自動化管理水平。
5、上料高度可達8米,一般的上料場合均可滿足要求。
6、承接各種要求的個性化定制粉劑垂直螺旋上料提升機,生產周期短,一般3-5天,最多一周即可交貨。





客服1